Office Hours: Monday - Friday 9:00am -5:00pm
For existing residents of Plum Brook Villas East. Contact the property manager, submit an online service request, or pay rent online.
Notes:
Rents are Subject to Change at any time
See “Rental Policies” document in the FORMS Section for details on required Deposits and Fees
Note the one-time Administration Fee for this property (charged only if approved for move-in) is $50.00

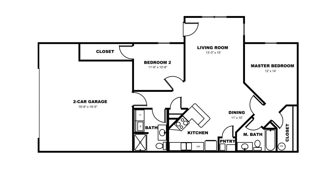
To Print the Site Plan, download PDF here »
Below please find Policy forms you will need to review and understand, before applying for a residence.
Each can be downloaded and saved on your own PC, for printing. These are Adobe PDF files.
If upon review, you have any questions about any of the forms or the information contained therein, please contact our management office to discuss.

Premium Suite - Kitchen

Premium Suite - Kitchen

Premium Suite - Kitchen

Premium Suite - Kitchen

Premium Suite - Living/Dining Area

Premium Suite - Living Room

Premium Suite - Master Bedroom

Premium Suite - Master Bathroom

Premium Suite - Master Walk in Closet

Premium Suite - Guest Bedroom

Premium Suite - Guest Bedroom

Premium Suite - Guest Bath

Premium Suite - Laundry

Premium Suite - Guest Walk in Closet

Premium Suite - Hall

Standard Suite - Kitchen

Standard Suite - Living Room

Standard Suite - Dining Room

Standard Suite - Living/Dining Area

Standard Suite - Master Bathroom

Standard Suite - Master Bathroom

Standard Suite - Guest Bath

Standard Suite - Walk in Closet
The Link below will take you to Real Page “One Site” Resident Portal. This is where residents can establish their personal account in our One Site system. The Resident Portal provides numerous functions for our residents. Including:
We encourage all Residents to log in and create their One Site account immediately after move-in.
Residents of Plum Brook Villas East have the ability to purchase their required Renters Insurance policy directly through eRenterPlan.com; our recommended insurance provider.
The link below will take you to our property page where you can obtain a quote and purchase a policy.
Melissa Marcum
Monday - Friday: 9:00am - 5:00pm
(Leasing Office)
2800 Mall Drive N
Sandusky, OH 44870
419-557-9355
Would you like to learn more about Plum Brook Villas East? Please complete the following form. This information will not be shared with any person or company outside of GPMC.
(*) - Required field